
Cessione attività
Appartamenti Marco Polo
Proposta di vendita di una primaria attività ricettiva turistica e brevi periodi situata nel centro di Portogruaro per raggiunti limiti d’età del Titolare.
Marco Polo
Complesso residenziale in vendita
€ 1.370.000
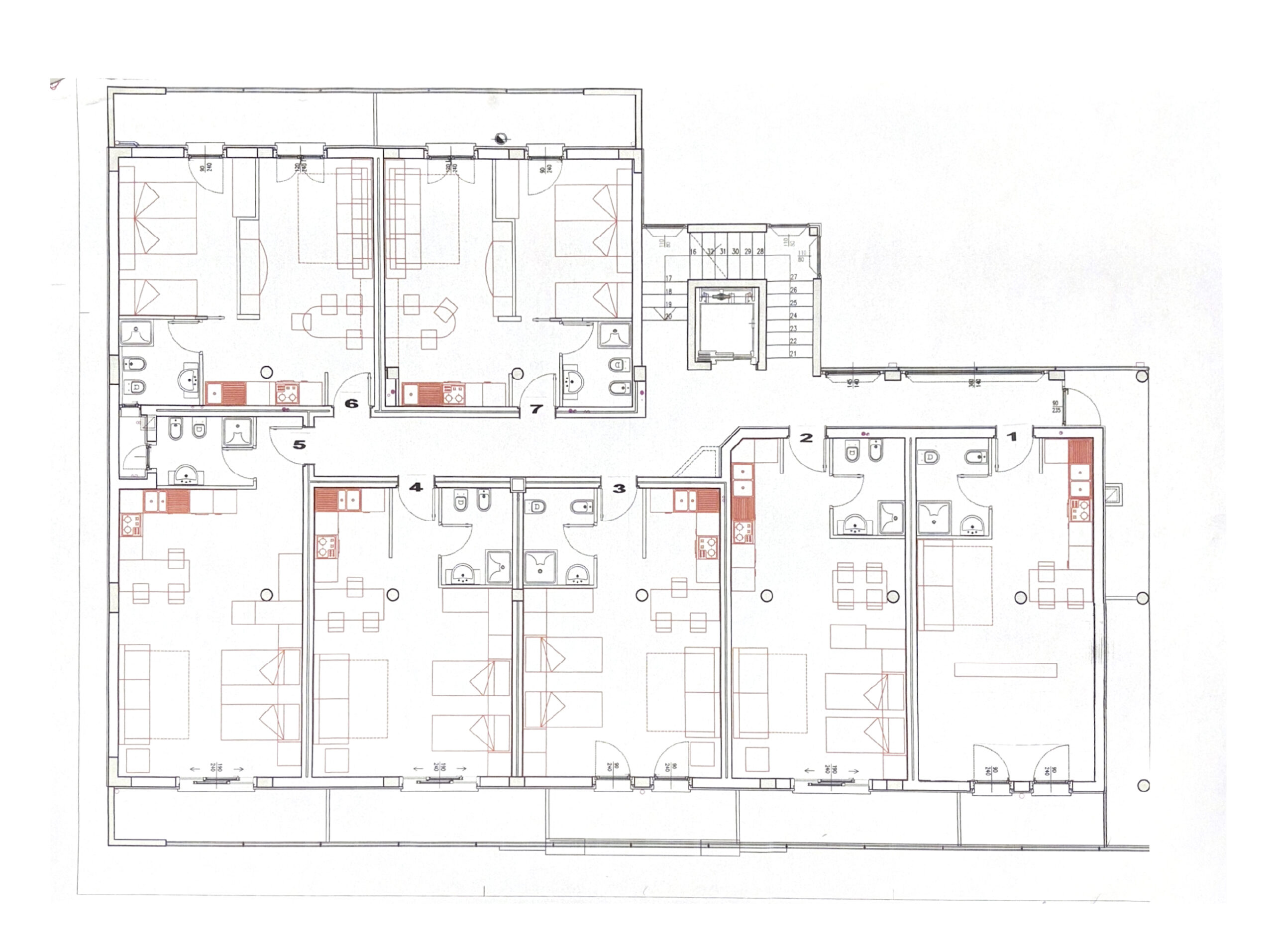
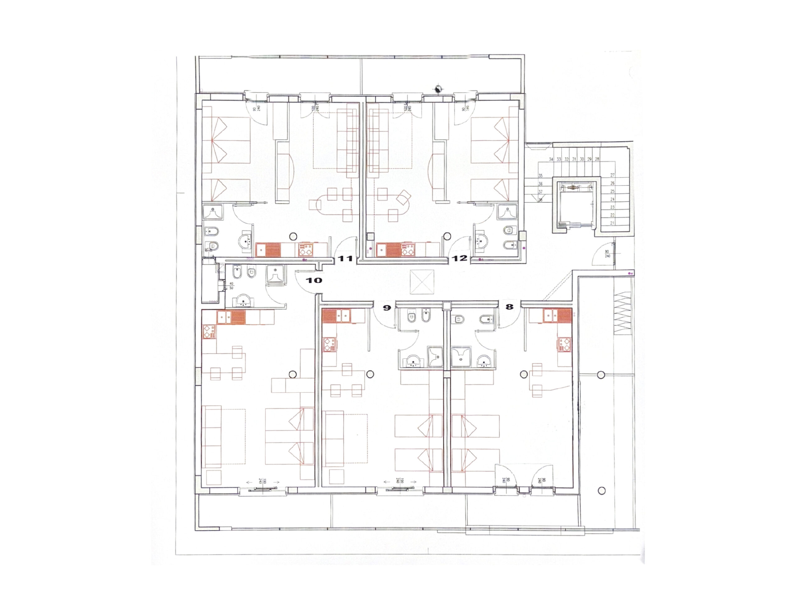
Composta di 12 appartamenti bilocali e monolocali di grandi dimensioni (superficie media 50mq), tutti con terrazzo e posto auto, in unico blocco al primo e secondo piano del Residence “Marco Polo B” sito all’inizio del centralissimo Viale Venezia, comodo a tutti i servizi. Costruzione del 2009 dotata di tutti i comfort, e realizzata con le migliori tecniche costruttive ed indirizzate al risparmio energetico che la collocano in classe energetica A/2. Riscaldamento a pavimento con centrale termica centralizzata a gas che consente consumi molto ridotti, impianto fotovoltaico, condizionamento autonomo con sensori di finestre aperte, cassaforte.
Arredamento completo di lavastoviglie, lavatrice, forno a microonde nonché di stoviglie e biancheria. Fanno inoltre parte della struttura:
- la lavanderia dotata di tutte le macchine industriali necessarie;
- l’avviamento maturato in 16 anni di attività
12 Appartamenti
Classe A2
Posti Auto
Impianto Fotovoltaico
Su richiesta (con valutazione a parte) sono disponibili anche:
- alcuni garages con basculante al piano interrato;
- un ufficio di circa 30mq (ex reception) all’ingresso del Condominio;
- un magazzino di 80mq al piano interrato.
La tassazione sul passaggio di proprietà può essere concordata tra le parti così da scegliere la modalità più conveniente per l’Acquirente, con la possibilità di ridurre il costo complessivo fino quasi a zero.
Può essere accollato un residuo mutuo di 186.000 euro ca. con tasso molto conveniente, da estinguere con 6 rate semestrali scadenti tra il 01/12/2025 ed il 01/06/2028. Si può anche concordare qualche tipo di dilazione per parte dell’importo.
Prezzo richiesto, estremamente conveniente, 1.370.000 euro
Le planimetrie


Galleria












